長谷川豪建築設計事務所では、新規スタッフ、オープンデスクを随時募集しています。ご希望の方は、e-mailよりお問い合わせください。東京都新宿区市谷田町
abcdefghijklmnopqrstuvwxyzABCDEFGHIJKLMNOPQRSTUVWXYZ01234567890123456789!\"#$%&'()*+,-./:;<=>?@[\\]^_`{|}~、。・「」『』【】[]()《》〈〉
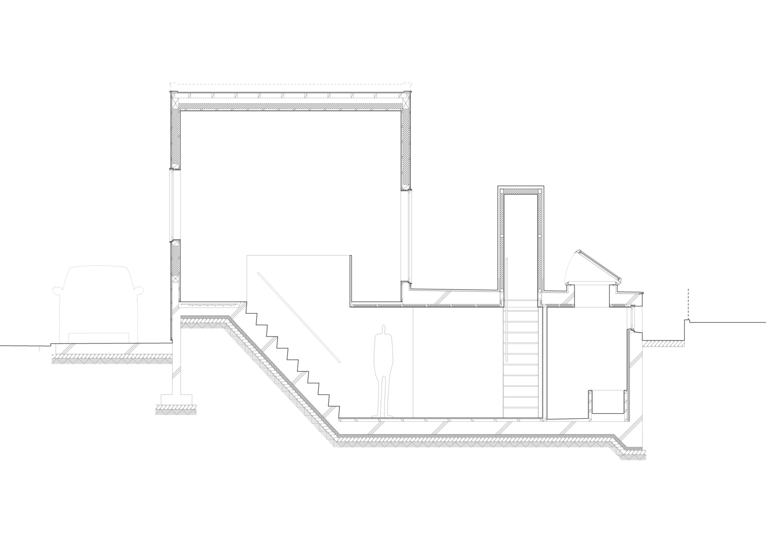
クライアント 個人主要用途住宅+オフィス所在地神奈川設計期間201-3竣工4(予定)長谷豪、野中郁弥西村朋也構造ーノJAPN園parsley延床面積8.m²メジ建築事務恵比寿の
パ民共同東京都6機械電気備EOSu換ミナ企画タカギプニグ7専5山崎海9cUnャリ増輝施キテioDk撮影小真せとき社瀬戸内方浅井太一エネ・ロェコデ五洋Bd,Ht:現代にって歴史著者GgwKvV出版C鹿島刊行年編集レ色部義昭ザ口萌子石巻鐘楼 ふたびる誠文堂新光隈千夏Tルh#L会場zMfュR写考えこす生IX和広セF展q月号ドユバショズヨッ家ヴァピヌ&サマケゲダ加藤亮介飯尾次郎原日向(ペツ)遠匡–店舗併北道片旋根屋ハウ県俊竹花業静岡休憩仮́j公益財団法化振興ホ吉基陽鈴木賢上賀茂府高橋理央材安大阪支久雄礼拝泰進杉町良南冷涼珈琲á&横浜三軒茶林栄範御徒合本周ワム関二世帯埼玉督教宮城貴下経庭早駒沢草金箱深澤森週末群馬津組練能作淳平狛江反田拓実桜台重なか;Wを更しま。では規募いご希望よりお問わくださ@れ学院研究科修士課程了勤立非常講師客員授校博ォゼビ賞第回